61 Pinnacle Close , Blackfalds, Alberta T4M 0M3 New For sale

$419,900

Bedrooms 3
Bathrooms 3
Area 1273 sqft
Basement Type Full (Unfinished)
Year Built 2025
Car Parking 1
Type Duplex

About 61 Pinnacle Close

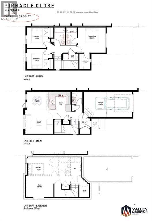
Quality built by Valley Mountain Homes, these brand new duplexes are located in a close on a big beautiful lot with room to build a second garage. Excellent floor plan with 1205 sq ft on 2 levels and an attached single garage. The main floor has 9' ceilings with an open style floor plan. The kitchen has flat panel melamine cabinets, full tile backsplash, quartz countertops and comes with the fridge, stove, dishwasher and microwave hood fan. The eating area and living room have nice sized windows. There is a garden door out to the pressure treated wood deck that has aluminum railings and a 6' high dividing fence between the units. There is a 2 pce bath on the main floor. Upstairs has 3 bedrooms, the primary is quite large and it has a 3 pce ensuite & walk in closet. The other 2 bedrooms share a 4 pce bath and there is upper floor laundry for your convenience. The WALKOUT basement is undeveloped. The furnace and hot water tank are high efficient. (id:51989)

Features of 61 Pinnacle Close

  • MLS® Number A2304398
  • Price $419,900
  • Bedrooms: 3
  • Bathrooms: 3
  • Square Footage: 1273 sqft
  • Property Type: Duplex
  • Community Name: Pinnacle
  • Amenities Near By Park, Playground, Schools, Shopping
  • Features Pvc Window
  • Parking Space Total 1
  • Plan 1423794
  • Structure Deck

Buildings

Bathroom Total 3 Bedrooms Above Ground 3
Bedrooms Total 3 Appliances Refrigerator, Dishwasher, Stove, Microwave Range Hood Combo
Basement Development Unfinished Basement Features Walk Out
Basement Type Full (unfinished) Constructed Date 2025
Construction Material Wood Frame Construction Style Attachment Semi-detached
Cooling Type None Exterior Finish Vinyl Siding
Flooring Type Carpeted, Vinyl Plank Foundation Type Poured Concrete
Half Bath Total 1 Heating Fuel Natural Gas
Heating Type Forced Air Stories Total 2
Size Interior 1273 Sqft Total Finished Area 1273 Sqft
Type Duplex

Parking

Attached Garage 1

Land

Acreage No Fence Type Not Fenced
Land Amenities Park, Playground, Schools, Shopping Size Frontage 4.48 M
Size Irregular 3480.00 Size Total 3480 Sqft|0-4,050 Sqft
Size Total Text 3480 Sqft|0-4,050 Sqft Zoning Description R2

Rooms

Level Type Dimensions
Main Level Living Room 10.42 Ft x 13.00 Ft
Main Level Dining Room 8.67 Ft x 10.33 Ft
Main Level Kitchen 11.00 Ft x 9.00 Ft
Main Level 2pc Bathroom .00 Ft x .00 Ft
Upper Level Primary Bedroom 11.50 Ft x 13.08 Ft
Upper Level Other 5.00 Ft x 7.17 Ft
Upper Level 3pc Bathroom .00 Ft x .00 Ft
Upper Level Bedroom 9.25 Ft x 11.08 Ft
Upper Level Bedroom 9.25 Ft x 11.08 Ft
Upper Level 4pc Bathroom .00 Ft x .00 Ft
Upper Level Laundry Room 7.33 Ft x 2.83 Ft

Agents and Offices

  • Dale Devereaux
  • Office: Century 21 Maximum
  • Aerial
  • Walking Score
What's Nearby

Do you have questions?

Call or text today, we are here to help!

1-403-561-3456