218 19 Avenue Nw , Calgary, Alberta T2M 0Y2 For sale

$2,078,888

Bedrooms 5
Bathrooms 5
Area 2888 sqft
Basement Type Full (Finished)
Year Built 2026
Car Parking 3
Type House
Fireplace 1

About 218 19 Avenue Nw

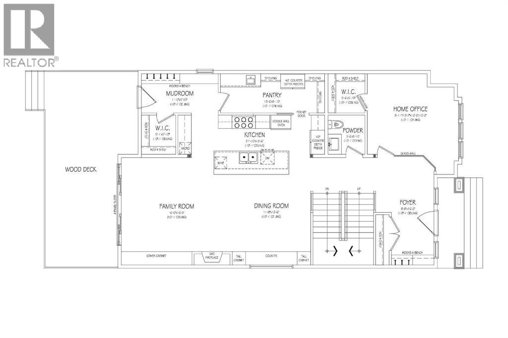
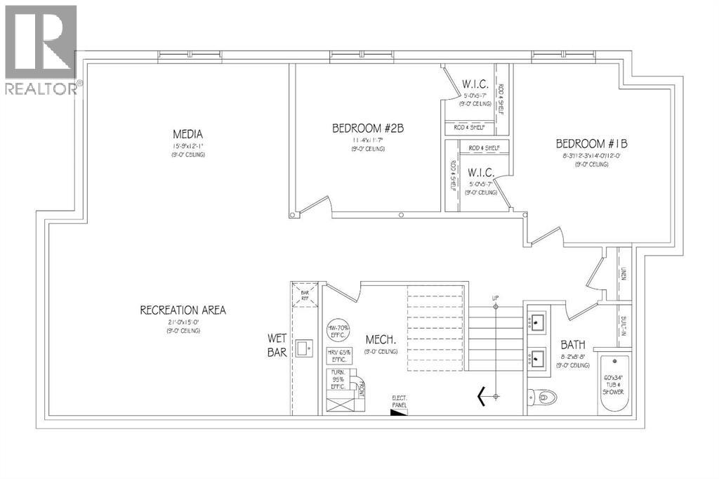
Set on a tree lined non-through street next to Circus Park, this modern 5-bed, 4.5-bath DETACHED HOME captures the best of inner-city living: where timeless design meets everyday ease. It’s a home that feels both elevated and practical, nestled in a community known for its tree-lined streets, family-friendly parks, and coffee spots that still remember your name. Confederation Park and the Mount Pleasant Community Pool are a short bike ride away, and your minutes to 16th Ave or Center Street, keeping downtown close without losing that neighbourhood calm. With top-rated schools like King George, Balmoral, & Crescent Heights nearby, plus quick access to SAIT and the University of Calgary, it’s a location that fits every stage of life. Modern, bright, and thoughtfully laid out, this home feels effortless the moment you step inside. A quiet foyer creates a proper arrival with space to drop keys, hang a coat, and take in the natural light pouring through the front windows. Off the entry, a peaceful home office with a glass wall sets the tone for productive workdays, while a stylish powder room sits conveniently beside. The main floor is all about connection. The kitchen sits center stage with an OVERSIZED ISLAND for casual meals and prep, sleek quartz counters, full-height cabinetry, and a premium appliance package that makes weeknights & hosting equally simple. A WALK-THROUGH PREP KITCHEN & PANTRY carries groceries straight from the door to your shelves with an extra sink and full-size freezer, linking neatly to a mudroom that keeps daily clutter out of sight with a large walk-in closet. The dining area easily fits a big table for gatherings with a modern built-in buffet, and the rear great room is the spot for movie night, featuring a clean-lined GAS FIREPLACE and sliding glass doors that open to the backyard. Custom railings lead to the upper loft with a tray ceiling – perfect for a second living area, kids’ play zone, or quiet reading spot. The primary suite is a calm escape with an OVERSIZED WALK-IN CLOSET and a spa-style ensuite featuring DOUBLE VANITY, a glass steam shower, and a deep soaker tub. Two additional bedrooms have WALK-IN CLOSETS and their own 4-pc modern ENSUITES, and laundry is on this level with a sink and built-in linen closet. Downstairs is ready for game day or late-night hangouts. A large rec room leaves space for a sectional and media nook, the WET BAR elevates entertaining, and TWO ADDITIONAL BEDS with a full bath are perfect for guests or teens wanting privacy. Centrally located this community keeps everything within reach. Enjoy a round of golf at The Winston Golf Club or stop by Lina’s Italian Market for dinner inspiration. Quick routes to downtown, local restaurants, playgrounds, and green spaces make this pocket of the NW one of the most loved in the city. *Now under construction with an anticipated completion in February 2026—offering you a rare opportunity to customize every detail and create your dream home today! (id:51989)

Features of 218 19 Avenue Nw

  • MLS® Number A2268641
  • Price $2,078,888
  • Bedrooms: 5
  • Bathrooms: 5
  • Square Footage: 2888 sqft
  • Property Type: House
  • Neigbourhood: Montgomery
  • Community Name: Tuxedo Park
  • Amenities Near By Park, Playground, Schools
  • Features Back Lane, Wet Bar, Closet Organizers, Gas Bbq Hookup
  • Parking Space Total 3
  • Plan 2129o
  • Structure Deck

Buildings

Bathroom Total 5 Bedrooms Above Ground 3
Bedrooms Below Ground 2 Bedrooms Total 5
Appliances Refrigerator, Cooktop - Gas, Dishwasher, Microwave, Oven - Built-in, Hood Fan, Garage Door Opener, Washer & Dryer Basement Development Finished
Basement Type Full (finished) Constructed Date 2026
Construction Style Attachment Detached Cooling Type See Remarks
Exterior Finish Brick, Composite Siding, Stucco Fireplace Present Yes
Fireplace Total 1 Flooring Type Carpeted, Hardwood, Tile, Vinyl Plank
Foundation Type Poured Concrete Half Bath Total 1
Heating Type Forced Air Stories Total 2
Size Interior 2888 Sqft Total Finished Area 2887.91 Sqft
Type House

Parking

Detached Garage 3

Land

Acreage No Fence Type Fence
Land Amenities Park, Playground, Schools Size Depth 38.11 M
Size Frontage 11.43 M Size Irregular 4693.06
Size Total 4693.06 Sqft|4,051 - 7,250 Sqft Size Total Text 4693.06 Sqft|4,051 - 7,250 Sqft
Zoning Description R-cg

Rooms

Level Type Dimensions
Second Level Primary Bedroom 16.83 Ft x 15.00 Ft
Second Level Other 8.67 Ft x 13.17 Ft
Second Level Bedroom 11.50 Ft x 11.50 Ft
Second Level Bedroom 11.00 Ft x 12.17 Ft
Second Level Loft 13.50 Ft x 15.17 Ft
Second Level Laundry Room 6.17 Ft x 7.67 Ft
Second Level 4pc Bathroom Measurements not available
Second Level 5pc Bathroom Measurements not available
Second Level 4pc Bathroom Measurements not available
Basement Bedroom 12.25 Ft x 14.00 Ft
Basement Bedroom 11.33 Ft x 11.58 Ft
Basement Media 15.75 Ft x 12.08 Ft
Basement Recreational, Games Room 21.00 Ft x 15.00 Ft
Basement 5pc Bathroom Measurements not available
Main Level Living Room 16.50 Ft x 16.00 Ft
Main Level Kitchen 21.83 Ft x 12.50 Ft
Main Level Pantry 15.50 Ft x 15.83 Ft
Main Level Dining Room 13.58 Ft x 12.17 Ft
Main Level Office 13.58 Ft x 12.17 Ft
Main Level Other 11.42 Ft x 5.83 Ft
Main Level 2pc Bathroom Measurements not available
Main Level Foyer 16.17 Ft x 8.67 Ft

Agents and Offices

  • Lisa Johnson
  • Office: RE/MAX House Of Real Estate
  • Aerial
  • Walking Score
What's Nearby

Do you have questions?

Call or text today, we are here to help!

1-403-561-3456