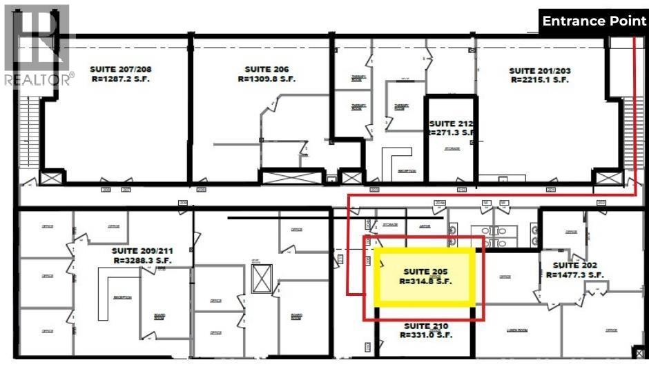
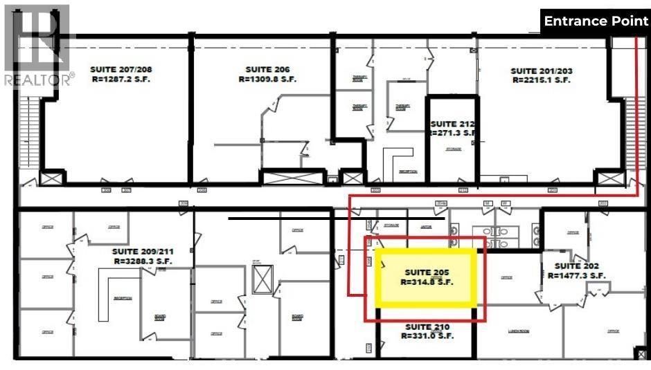
205, 11402 100 Street , Grande Prairie, Alberta T8V 2N5 For lease

$556 Monthly

Area 315 sqft
Year Built 1980
Type Offices

About 205, 11402 100 Street

Discover an ideal office space for lease, perfectly suited for professionals seeking a private and quiet work environment. This 315 sq. ft. upstairs office space offers excellent exposure while maintaining a high level of privacy. The base rent of this unit is priced to be $14.00 per square foot with an additional cost of $7.16 making the total monthly rent come to an affordable $555.45. plus utilities. Ready for immediate possession, this space is perfect for solo entrepreneurs or small business owners looking to move in without delay. Don’t miss out—Book a viewing today! (id:51989)

Features of 205, 11402 100 Street

  • MLS® Number A2225967
  • Price $556 Monthly
  • Square Footage: 315 sqft
  • Property Type: Offices
  • Community Name: VLA Montrose

Buildings

Constructed Date 1980 Size Exterior 315 Sqft
Size Interior 315 Sqft Total Finished Area 315 Sqft
Type Offices

Land

Acreage No Size Total Text Unknown

Agents and Offices

  • Bobbi Dawson
  • Office: RE/MAX Grande Prairie
  • Aerial
  • Walking Score
What's Nearby

Do you have questions?

Call or text today, we are here to help!

1-403-561-3456